top of page

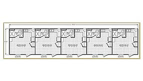
Used 5x5 Workforce Housing

16' 0"

DETAILS

Bedrooms

Baths

Sqft

Length

Width

Sections

Stories

Style

5

5

1216

76' 0"

16' 0"

1

1

Ranch

ABOUT THIS HOME

Used 5 Bed / 5 Bath units ready for delivery. Price does not include delivery and setup.

REQUEST MORE INFO ON THIS HOME

ADDITIONAL MODELS

bottom of page